Byt Trenčín

Trenčiansky kraj, okres Trenčín, mesto Trenčín

Nehnuteľnosť

Navrhovateľ dražby: Všeobecná úverová banka, a.s.
Dražobník: HeyPay s.r.o.
Naša značka: HP007/26
Znalecká hodnota: 85 700 
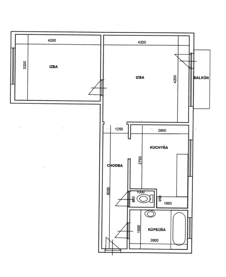
Popis: Dražba - Dvojizbový byt č. 36, na 1.p., vchode č. 33 na ulici Beckovská v meste Trenčín. Vypočítaná podlahová plocha vrátane pivnice je 59,73 m2.
Vzhľadom na skutočnosť, že hodnotené nehnuteľnosti neboli sprístupnené, ohodnotenie predmetu dražby bolo vykonané v zmysle § 12 ods.3 zákona č.527/2002 o dobrovoľných dražbách, v znení neskorších predpisov ("ohodnotenie možno vykonať z dostupných údajov, ktoré má dražobník k dispozícii"). Z dôvodu neumožnenia vykonania obhliadky nie je možné určiť presné technické ani dispozičné riešenie ohodnocovaných nehnuteľností, rovnako ani ich užívaciu schopnosť.
Byt č.36 na prízemí dispozične pozostáva z predsiene, 2 izieb a príslušenstva : kuchyňa, kúpelňa, WC, balkón a pivnica o celkovej výmere 59,73 m2. Byt je po komplexnej rekonštrukcii so štandardným typovým vybavením.
Bytový dom bol daný do užívania v roku 1958, ide o tradične murovaný obytný dom so sedlovou strechou.Bytový  dom je napojený na verejné rozvody inžinierskych sietí. Bytový dom je postavený do tvaru U.
V zmysle zákona č. 182/1993 Z.z. o vlastníctve bytov a nebytových priestorov, v znení neskorších právnych predpisov:
spoločnými časťami domu sú: časti domu nevyhnutné na jeho podstatu a bezpečnosť, najmä základy domu, strechy, chodby, obvodové múry, priečelia, vchody, schodištia, spoločné terasy, podkrovia, povaly, vodorovné nosné a izolačné konštrukcie a zvislé nosné konštrukcie,
spoločnými zariadeniami domu sú:  zariadenia, ktoré sú určené na spoločné užívanie a slúžia výlučne tomuto domu, a to aj v prípade, ak sú umiestnené mimo domu. Takýmito zariadeniami sú najmä výťahy, práčovne a kotolne vrátane technologického zariadenia, sušiarne, kočíkarne, spoločné televízne antény, bleskozvody, komíny, vodovodné, teplonosné, kanalizačné, elektrické, telefónne a plynové prípojky.

zobraziť viac
Umiestnenie nehnuteľnosti:

DRAŽBA

Termín dražby: 12.5.2026 11:30
Miesto dražby: Administratívna budova SEI | Science & Education Institute s. r. o., miestnosť: Meeting room 4, 2. poschodie, Bratislavská 614, 91105 Trenčín.
Obhliadka 1: 23.4.2026 10:00
Obhliadka 2: 30.4.2026 11:30
Najnižšie podanie: 85 700 
Dražobná zábezpeka: 20 000 
Variabilný symbol: 726
Číslo účtu: SK61 0200 0000 0042 9821 1051
Dokumenty na stiahnutie: List vlastníctva
Znalecký posudok
Oznámenie

KONTAKTY

Kontaktná osoba: Schmidt Jozef
Telefón: 0903 404 713
E-mail: schmidt@heypay.sk

MÁM ZÁUJEM

    PRIPOMÍNAJTE MI

    Chcete byť upozornení deň vopred o konaní obhliadky, alebo samotnej dražby? Nechajte nám email a upozorníme vás. Nebojte sa, nebudeme vás spamovať.

    Prihlásiť/Registrovať sa